Erik hll


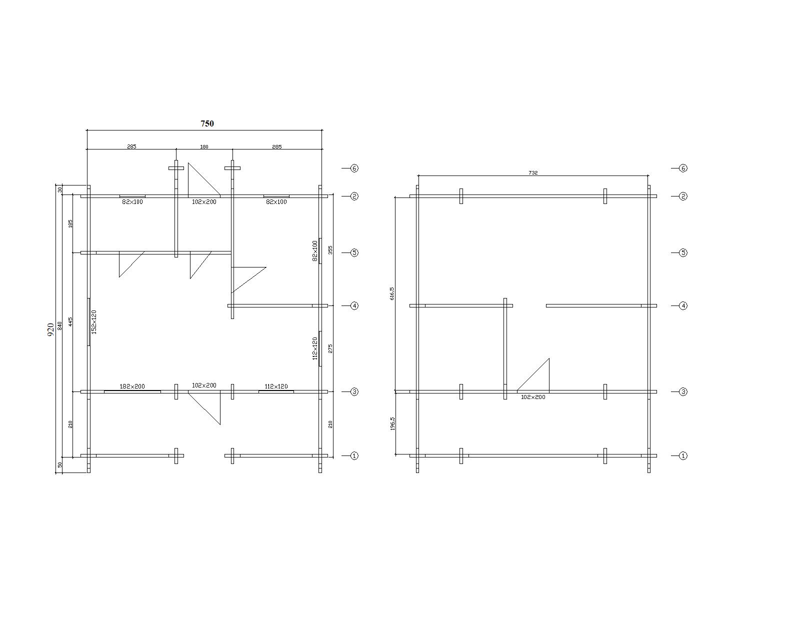
Ferienhaus in Blockbauweise "Eric T B95" Ein Haus mit Sauna und Platz für Gäste in der Wildnis von Süd Finnland. Bequem kann der Kunde hier 4 Personen auf seinem Schlafboden unterbringen und die langen lauen Sommerabende auf seiner grosszügigen Terrase geniessen. Dieses Haus war ein DIY oder Selbstaufbau Projekt und wurde direkt ab Werk telefonisch unterstützt.